Här kan man se fastigheter som har utrymmen för uthyrning hos LADES Fastigheter AB och LADES korreboda AB
Fastigheter med lediga lokaler
-
En stor fastighet beläggen i Sankt Olof som ligger ca 2mil från simrishamn och 1mil från kivik. Fastigheten har en del stora utrymmen och många småutrymmen.
-
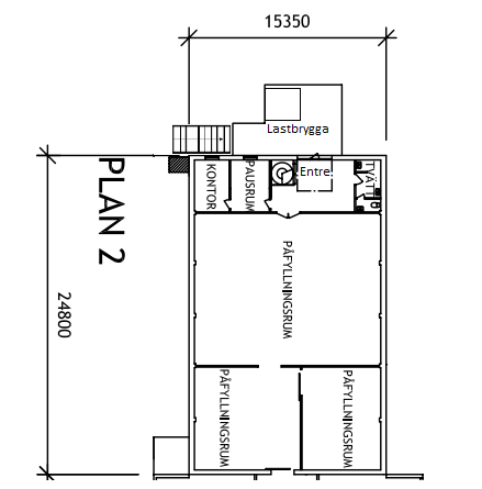
Lokal 4201 i markplan belägen i fastigheten Korreboda 5:1 i Sankt Olof med egen lastbrygga och ingång via Lunkendevägen. Betonggolv, väggar och tak i lättbetong. 2st kontorsutrymmen. 2st toalettter. Lokalen har en port och en gångdörr. Uppvärmning med vattenburna radiatorer...
-
Finns ett antal lediga parkeringsplatser kontakta oss för mer information Uppvärmt utrymme För mer information ring 0760235225